Wohnung in Charlottenburg

Bauherr: Privat Ort: Charlottenburg, Berlin Jahr: 2018-2020 | Größe: 220 m| Leistungen: LPH 1-7 mit Anna Tscherch | Mitarbeit: Johanna Edelmann, Stefana Dilova, Jiaxiuwei Pan

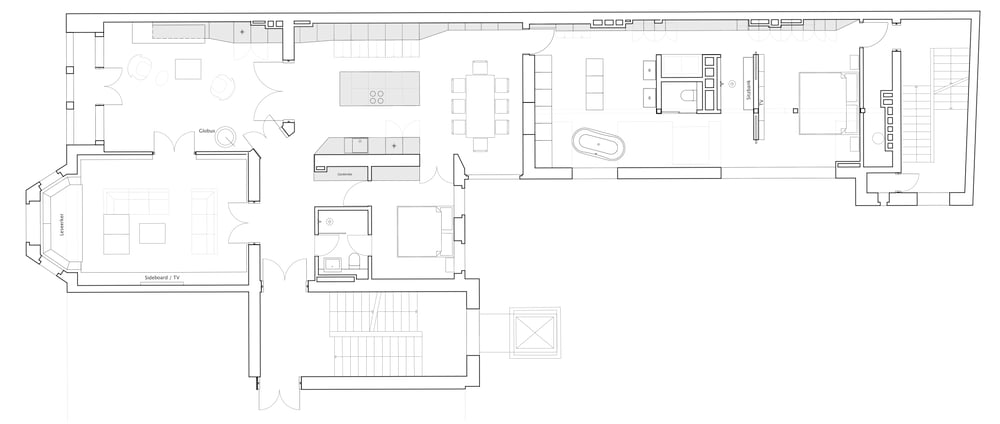
Die Wohnung befindet sich im 4. Geschoss einer Blockrandbebauung aus der Gründerzeit. Die Räume im Vorderhaus mit stattlichen Raumhöhen und restaurierten Stuckarbeiten werden zu repräsentativen Wohnräumen, die über die aufgearbeiteten Flügeltüren und moderne raumhohe Schiebetüren zu großzügigen Raumfolgen verbunden werden.

Der private Wohnungsteil befindet sich in der Mansarde im Seitenflügel. Hier wurde durch Anpassung der Dachkonstruktion aus den ehemaligen Dachkammern ein luxuriöser Schlaf- und Wellnessbereich.


1. EMPFANG

Das eingestellte Möbel im Eingangsbereich nimmt die Garderobe auf und leitet in Gästezimmer und Küche über. 


2. GÄSTEBAD

Das kleine Gästebad kann direkt vom Empfang betreten werden und auch vom Gästezimmer. Spiegel an Wand und Decke lassen den Raum größer wirken.


 

 

2. ERKERZIMMER

Ein umlaufender Sockel fasst den Raum und nimmt Bücherregale, Stauraum und die Sitznische im Erker auf. Die Wandfläche darüber bietet Platz für die Kunstsammlung des Bewohner.



 

3. BALKONZIMMER

Zentrales Gestaltungselement ist ein Einbaumöbel, das sich vom Balkonzimmer über die Küche bis in den Seitenflügel erstreckt und die Funktion der Räume bedient.



4. KÜCHE

Zentrum der Wohnung ist die Küche. Im Berliner Zimmer platziert, bildet sie den Übergang zum Seitenflügel, liegt aber auch direkt am Empfang und ist über verglaste Flügeltüren mit dem Kaminzimmer verbunden.



3. SCHLAFTRAKT Im privaten Seitenflügel gehen Bad, Umkleide und Schlafzimmer ineinander über. Die Einbaumöbel bieten viel versteckten Stauraum für Kleidung, und auch Waschmaschine und Trockner bleiben unsichtbar in diesem Wellnessbereich.

3. SCHLAFTRAKT

Im privaten Seitenflügel gehen Bad, Umkleide und Schlafzimmer ineinander über. Die Einbaumöbel bieten viel versteckten Stauraum für Kleidung, und auch Waschmaschine und Trockner bleiben unsichtbar in diesem Wellnessbereich.