Dachausbau in Neukölln

Bauherr: Privat Ort: Neukölln, Berlin Jahr: 2018-2019 | Größe: 130 mBGF | Leistungen: LPH 1-8 | In Zusammenarbeit mit: Anna Tscherch, Sabine Koch | Mitarbeit: Johanna Edelmann, Stefana Dilova

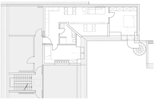
Für den Ausbau einer ungenutzten Dachfläche war die Errichtung einer außenliegenden Fluchttreppe als 2. Fluchtweg erforderlich. 

Der 1. Fluchtweg führt über einen notwendigen Flur und das Bestandstreppenhaus. 

Herzstück der Wohnung ist die neue Dachterrasse, welche die zentrale Wohnküche über raumhohe Schiebetüren nach Außen erweitert.

 

Der Dachstuhl im Bereich der neuen Wohnung wurde komplett neu errichtet und die Balkenlagen über dem 4. OG für die Nutzungsänderung durch Verstärkungen statisch ertüchtigt.